Schönes Grundstück in ruhiger Lage
- 702 m² Grundstücksgröße
- 179.000€ Kaufpreis
In Vehlefanz erwartet Sie ein schönes, gut geschnittenes Baugrundstück von etwa 702 m² Größe. Diese Fläche bietet ausreichend Raum für ein Einfamilienhaus mit allem Drum und Dran – ob großzügige Terrasse, Carport oder Gartenhäuschen, hier findet alles seinen Platz. Das Grundstück befindet sich in ruhiger Lage am Ortsrand und überzeugt mit Weitblick über die umliegende grüne Landschaft. Naturfreunde werden sich an der Nähe zu Wäldern und dem malerischen Mühlensee erfreuen, der zu Spaziergängen und Freizeitaktivitäten am Wasser einlädt. Gleichzeitig punktet das Angebot mit einem besonderen Vorteil: Das Grundstück wird provisionsfrei verkauft. Für Sie als Käufer bedeutet dies, dass keine Maklercourtage anfällt – ein erfreuliches Extra, das den Erwerb noch attraktiver macht.
Ländliche Idylle mit schneller Anbindung
Dieses Grundstück vereint die Vorzüge einer ländlichen Idylle mit einer guten Anbindung an städtische Zentren. Vehlefanz, ein Ortsteil der Gemeinde Oberkrämer, liegt nur rund 20 km nördlich von Berlin. Über die nahe Autobahn A10 (Anschlussstelle Oberkrämer) ist die Hauptstadt in kurzer Zeit erreichbar, ebenso die Stadt Potsdam und andere Ziele in Brandenburg. Auch mit öffentlichen Verkehrsmitteln sind Sie gut versorgt: Vehlefanz verfügt über einen eigenen Regionalbahn-Haltepunkt (RB55) mit Verbindungen Richtung Hennigsdorf und Berlin, sowie Buslinien im Ort. Für den Alltag finden Sie wichtige Einrichtungen in der Umgebung – vom Supermarkt bis zur ärztlichen Versorgung ist alles schnell erreichbar. Familien profitieren besonders von der Infrastruktur vor Ort: Eine Grundschule und Kita befinden sich direkt im Ort, was Vehlefanz für Familien mit Kindern sehr attraktiv macht. Darüber hinaus laden die Umgebung und örtliche Sehenswürdigkeiten – wie die historische Vehlefanzer Bockwindmühle – zu Entdeckungstouren ein, und im nahegelegenen Freizeitpark Germendorf oder am Mühlensee können Groß und Klein erholsame Wochenenden verbringen.
Optimal für Familien und Naturliebhaber
Dank der ruhigen, naturnahen Umgebung und der überschaubaren Grundstücksgröße ist dieses Angebot ideal für Familien, Paare oder auch Einzelpersonen, die ihr Traumhaus in entspannter Atmosphäre verwirklichen möchten. Eltern finden hier ein sicheres Wohnumfeld für ihre Kinder, geprägt von Dorfgemeinschaft und viel Grün – perfekt zum Spielen und Aufwachsen. Gleichzeitig ist die Lage für Pendler attraktiv: Wer in Berlin oder Umgebung arbeitet, kann dem Großstadttrubel nach Feierabend entfliehen und die Ruhe in Vehlefanz genießen, ohne auf einen bequemen Arbeitsweg verzichten zu müssen. Naturliebhaber und Gartenfreunde können sich auf dem eigenen Grundstück und in der umgebenden Landschaft entfalten – sei es beim Gärtnern, beim Beobachten der Vogelwelt oder bei Spaziergängen im nahegelegenen Krämer Forst. Durch die Kombination aus Gemeinsinn auf dem Land und Nähe zur Stadt eignet sich das Grundstück besonders für diejenigen, die das Beste aus beiden Welten suchen: ein familienfreundliches Zuhause im Grünen mit urbaner Anbindung.
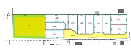
Flexible Bebauung nach Bebauungsplan
Das Baugrundstück in Vehlefanz zeichnet sich durch flexible Bebauungsmöglichkeiten aus. Es unterliegt dem Bebauungsplan Nr. 76/2021 der Gemeinde Oberkrämer, der vielfältige Haustypen zulässt. Ob ein barrierefreier Bungalow, ein klassisches Einfamilienhaus oder eine elegante Stadtvilla – auf diesem Grundstück können Sie den Haustyp wählen, der am besten zu Ihren Wünschen und Lebensplänen passt. Die Grundstückszuschnitte sind durchdacht und erlauben eine optimale Ausnutzung der Fläche. Darüber hinaus sind bereits wichtige Erschließungsmaßnahmen getroffen: Die Zufahrtsstraße zum Grundstück ist im Bau und deren Kosten sind bereits im Kaufpreis enthalten. Auch die notwendigen Medienanschlüsse liegen in der anliegenden Straße bereit, sodass der Anschluss Ihres Neubaus problemlos erfolgen kann. Insgesamt bietet dieses provisionsfreie Grundstück in Vehlefanz ideale Voraussetzungen, um zeitnah und ohne versteckte Nebenkosten mit Ihrem Bauprojekt zu starten. Verwirklichen Sie hier Ihren Traum vom eigenen Heim – in einer Umgebung, die Lebensqualität, Ruhe und eine hervorragende Lage harmonisch vereint.
Oberhavel Hausbau GmbH
Telefon: +49 (0) 3304 - 522 01 52
E-Mail: info(at)oberhavel-hausbau.de






